Compare Properties

You can compare only 4 properties
Compare Reset
Myplus.pl
  • Home
    • Home 1
    • Home 2
    • Home 3
    • Home 4
    • Home 5
    • Home 6
  • Listings
    • List Layout
      • With Sidebar
      • With Map
      • Full Width
    • Grid Layout
      • Standard With Sidebar
      • Compact With Sidebar
      • With Map
      • Full Width
    • Half Screen Map
      • List Layout
      • Grid Standard Layout
      • Grid Compact Layout
  • Features
    • Plans and Pricing
    • Single Properties
      • Property Style 1
      • Property Style 2
      • Property Style 3
    • Search Styles
      • Sidebar Search
      • Advanced Search
      • Home Search 1
      • Home Search 2
      • Home Search 3
    • My Account
      • My Profile
      • Bookmarked Listings
      • My Properties
      • Submit Property
      • Change Password
    • Agents
      • Agents List
      • Agent Profile
    • Agencies
      • Agencies List
      • Agency Page
  • Pages
    • Blog
      • Blog
      • Single Blog Post
    • Contact
    • Elements
    • Typography
    • Icons
Log In / Register Submit Property

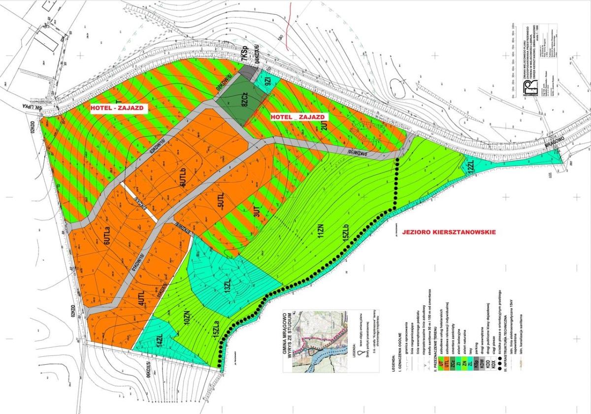
TEREN USŁUG HOTELOWYCH

warmińsko-mazurskie, Mrągowo, Mrągowo
1 300 000zł
0
  • 835 303 ID
  • m² 2 900 000
  • Barbara Markowska Kontakt
  • 601 223 646 Nr Telefonu
  • sprzedaż Transakcja
  • inwestycyjna Rodzaj

Description

Działka hotelowa nr ewid. 326/59
Nr działki 281003_2.0009.326/59, Działka powstała w wyniku podziału działki 326/9, dla której założona jest księga wieczysta OL1M/00041156/84.
Cena działki 1 300 000 zł netto, do rozsądnej negocjacji.
Działka o powierzchni 27 878 m2 położona jest w nowopowstającym terenie zabudowy turystyczno-rekreacyjnej, przy drodze Mrągowo – Św. Lipka, na wzgórzu nad jeziorem Kiersztanowskim. Przepiękna okolica, wiele terenów niezagospodarowanych, ogólnodostępnych, idealnych do spacerów i dalszych wędrówek. Jest także wytyczony szlak kajakowy od Świętej Lipki do Mrągowa. Jezioro Kiersztanowskie czyste, nadające się do kąpieli i wędkowania. Odległość do jeziora ok. 90 m. Dostęp do jeziora drogą wewnętrzną o szer. 6 m.
Dla całego terenu opracowany i uchwalony został Miejscowy Plan Zagospodarowania Przestrzennego. Działka oznaczona w planie symbolem 1UT przeznaczona jest w nim na cele zabudowy turystycznej i została już geodezyjnie wydzielona. Oznacza to, że natychmiast po wykonaniu projektu można przystąpić do budowy hotelu, motelu, zajazdu, zespołu domków letniskowych, campingu lub pola namiotowego.
Na terenie oznaczonym na planie 1UT minimalna powierzchnia działki określona została na 5000m2. Oznacza to, że działka może być podzielona nawet na 5 samodzielnych działek budowlanych.

Uzbrojenie terenu:
Energia elektryczna – za działką, zahaczając o północny narożnik, przebiega linia średniego napięcia 15 kV. W uliczkach osiedlowych wykonana została linia kablowa.
Woda – z własnej studni wierconej lub ze studni głębinowej, którą gmina obecnie realizuje w osiedlu Lembruk w odległości ok 100 m.
Kanalizacja sanitarna gminna ø200 została wykonana i przebiega wzdłuż północnej granicy działki. Na przyległym terenie osiedlowym wykonana została kanalizacja we wszystkich uliczkach wewnętrznych.
Obecnie działka w większości porośnięta jest samosiejką brzozową na wycinkę której nie będzie wymagane pozwolenie, Wystarczy zgłoszenie.

Fragment z planu zagospodarowania

§ 14. Ustalenia szczegółowe dotyczące terenu 1UT

1. Przeznaczenie terenu – zabudowa usług hotelarskich (hotel, motel, zajazd, camping, pole namiotowe).

2. Zasady kształtowania zabudowy kubaturowej:

1) wysokość zabudowy do trzech kondygnacji nadziemnych w tym jedna kondygnacja w dachu stromym;

2) dachy dwu lub wielospadowe o nachyleniu połaci 350 do 450 kryte dachówka ceramiczną w kolorze ceglastej czerwieni;

3) główne połacie dachu o tym samym spadku;

4) poziom rzędnej parteru nie może być wyższy niż 45 cm od poziomu terenu w najwyższym jego punkcie w obrysie budynku;

5) dla budynków parterowych dopuszcza się dachy o kącie nachylenia połaci 250.

3. Zasady zagospodarowania terenów:

1) w programie zagospodarowania działki należy uwzględnić poza zabudowa kubaturową miedzy innymi: zieleń urządzoną, place zabaw dla dzieci, małą architekturę, parkingi;
2) powierzchnia zabudowy:
– dla terenu 1UT – max 10 % powierzchni działki budowlanej (czyli prawie do 3000 m2)
3) wskaźnik intensywności zabudowy:
– dla terenu 1UT – 0,1 ÷ 0,4
4) powierzchnia terenu biologicznie czynnego:
– dla terenu 1UT min. 70% powierzchni działki budowlanej;
5) nieprzekraczalne linie zabudowy jak na rysunku planu;
6) zakazuje się stosowania ogrodzeń pełnych i z prefabrykowanych elementów żelbetowych;
7) dopuszcza się ogrodzenia do wysokości 1,50 m wykonane z materiałów tradycyjnych jak: kamień, drewno, ceramika budowlana oraz elementy kute;
8) dostępność komunikacyjna z dróg wewnętrznych 01KDW i 03KDW;

Features

  • inwestycyjna
  • piętro: /
  • rynek:

Similar Properties

Featured
145 000zł 32zł / m²

DZIAŁKA – SPRZEDAM

warmińsko-mazurskie, Iława, Iława Details
  • 826 371 ID
  • m² 4 476
  • Robert Brzycki Kontakt
  • 734 215 869 Nr Telefonu
  • sprzedaż Transakcja
  • rolna Rodzaj
3 lata ago
Featured
990 000zł 107zł / m²

Działka na hotel, zajazd, camping, pole namiotowe

warmińsko-mazurskie, Mrągowo, Mrągowo Details
  • 6 746 ID
  • m² 9 200
  • Włodzimierz Jacek Markowski Kontakt
  • 601 223 646 Nr Telefonu
  • sprzedaż Transakcja
  • inwestycyjna Rodzaj
3 lata ago
Featured
195 000zł 148zł / m²

Na raty działki w lesie w otoczeniu jezior warmia

warmińsko-mazurskie, Purda, Purda Details
  • 832 831 ID
  • m² 1 315
  • 667 997 744 Nr Telefonu
  • sprzedaż Transakcja
  • leśna z prawem budowy Rodzaj
8 miesięcy ago

Featured Properties

Featured
Mieszkanie 60m2 w Chełmsku Śląskim240 000zł
  • 835 889 ID
  • m² 60
  • L. Pomieszczeń 3
  • Anna Pajor Kontakt
  • 535 339 915 Nr Telefonu
  • sprzedaż Transakcja
  • 1 Piętro
  • 4 Liczba pięter
  • 92 Rok budowy
  • Blok Rodzaj
Featured
Wyjątkowa działka w otulinie Kampinosu690 000zł
  • 835 890 ID
  • m² 1 500
  • 601 932 499 Nr Telefonu
  • sprzedaż Transakcja
  • budowlana Rodzaj
Featured
3 balkony/75 m2/2 miejsca w garażu/Komórka 10 m21 800 000zł
  • 835 891 ID
  • m² 75
  • L. Pomieszczeń 3
  • Jakub Lewicki Kontakt
  • 600 940 060 Nr Telefonu
  • sprzedaż Transakcja
  • 1 Piętro
  • 4 Liczba pięter
  • Apartamentowiec Rodzaj
Featured
Nieruchomość w miejscowości Spytkowice318 000zł
  • 835 888 ID
  • m² 133
  • L. Pomieszczeń 3
  • 124 122 121 Nr Telefonu
  • sprzedaż Transakcja
  • wolnostojący Rodzaj
Featured
OKAZJA 2-pokoje z potencjałem Os. Pomorskie330 000zł
  • 835 877 ID
  • m² 52
  • L. Pomieszczeń 2
  • 459 566 916 Nr Telefonu
  • sprzedaż Transakcja
  • 1 Piętro
  • 10 Liczba pięter
  • Blok Rodzaj
Featured
3 pokojowy apartament o podwyższonym standardzie1 150 000zł
  • 835 883 ID
  • m² 59
  • L. Pomieszczeń 3
  • Alkre Development Kontakt
  • 696 771 345 Nr Telefonu
  • sprzedaż Transakcja
  • 4 Piętro
  • 4 Liczba pięter
  • 2 024 Rok budowy
  • Nowe budownictwo Rodzaj
Featured
Mieszkanie 37m2 nad jeziorem Apartamenty Lubikowo283 783zł
  • 835 884 ID
  • m² 37
  • L. Pomieszczeń 3
  • 695 303 419 Nr Telefonu
  • sprzedaż Transakcja
  • 1 Piętro
  • 2 Liczba pięter
  • 2 026 Rok budowy
  • Nowe budownictwo Rodzaj
Featured
SPRZEDAM MIESZKANIE UL. MARATOŃSKA POZNAŃ960 000zł
  • 835 886 ID
  • m² 47
  • L. Pomieszczeń 2
  • Monika Gruszczyńska Kontakt
  • 607 581 977 Nr Telefonu
  • sprzedaż Transakcja
  • 3 Piętro
  • 5 Liczba pięter
  • 2 010 Rok budowy
  • Apartamentowiec Rodzaj
Featured
Mieszkanie 2 pokoje2 800zł
  • 835 873 ID
  • m² 51
  • L. Pomieszczeń 2
  • 665 800 003 Nr Telefonu
  • wynajem Transakcja
  • 9 Piętro
  • 11 Liczba pięter
  • 2 001 Rok budowy
  • Nowe budownictwo Rodzaj
Featured
OGRZEWANIE PODŁOGOWE DOBRE USTAWIENIE197 000zł
  • 835 834 ID
  • m² 44
  • L. Pomieszczeń 2
  • Cegiełka projektowanie i remont Kontakt
  • 790 343 288 Nr Telefonu
  • sprzedaż Transakcja
  • 1 Piętro
  • 4 Liczba pięter
  • Kamienica Rodzaj

Findeo

Morbi convallis bibendum urna ut viverra. Maecenas quis consequat libero, a feugiat eros. Nunc ut lacinia tortor morbi ultricies laoreet ullamcorper phasellus semper.

Helpful Links

  • Plans and Pricing
  • Contact

Contact Us

12345 Little Lonsdale St, Melbourne
Phone: (123) 123-456
E-Mail: office@example.com

© Theme by Purethemes.net. All Rights Reserved.