Compare Properties

You can compare only 4 properties
Compare Reset
Myplus.pl
  • Home
    • Home 1
    • Home 2
    • Home 3
    • Home 4
    • Home 5
    • Home 6
  • Listings
    • List Layout
      • With Sidebar
      • With Map
      • Full Width
    • Grid Layout
      • Standard With Sidebar
      • Compact With Sidebar
      • With Map
      • Full Width
    • Half Screen Map
      • List Layout
      • Grid Standard Layout
      • Grid Compact Layout
  • Features
    • Plans and Pricing
    • Single Properties
      • Property Style 1
      • Property Style 2
      • Property Style 3
    • Search Styles
      • Sidebar Search
      • Advanced Search
      • Home Search 1
      • Home Search 2
      • Home Search 3
    • My Account
      • My Profile
      • Bookmarked Listings
      • My Properties
      • Submit Property
      • Change Password
    • Agents
      • Agents List
      • Agent Profile
    • Agencies
      • Agencies List
      • Agency Page
  • Pages
    • Blog
      • Blog
      • Single Blog Post
    • Contact
    • Elements
    • Typography
    • Icons
Log In / Register Submit Property

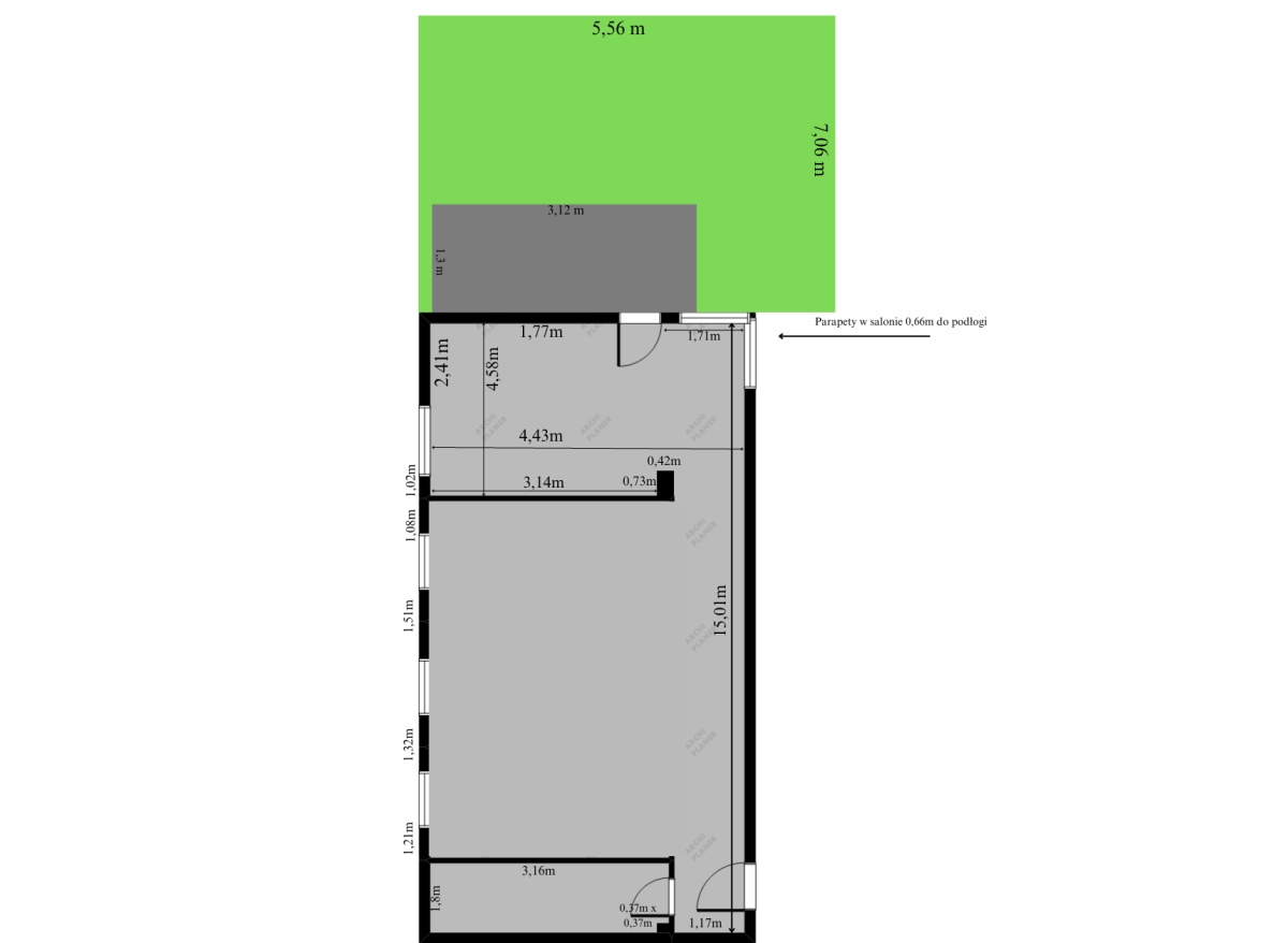
Apartament w Gdyni Orłowo OKAZJA

pomorskie, Gdynia, Orłowo
1 239 000zł
18492zł / m²
  • 834 654 ID
  • m² 67
  • L. Pomieszczeń 4
  • Magdalena Urbasz Kontakt
  • 695 108 508 Nr Telefonu
  • sprzedaż Transakcja
  • 3 Liczba pięter
  • 2 024 Rok budowy
  • Apartamentowiec Rodzaj

Description

Dzień dobry, na sprzedaż apartament położony w pięknej dzielnicy Gdynia- Orłowo, ul. Wrocławska 43.

W bardzo bliskim sąsiedztwie pełne zaplecze usługowo-handlowe zlokalizowane przy Placu Górnośląskim.

Mieszkanie ma powierzchnię 67,12 m2, stan deweloperski.

To świetna propozycja na lokatę kapitału- mieszkanie jest idealne pod wynajem na pokoje, ale również na komercję typu kancelaria prawna lub kancelaria notarialna itp. W zdjęciach umieszczam również propozycję podziału mieszkania na dwie osobne kawalerki.

Do apartamentu przynależy prywatny, ogrodzony ogródek o powierzchni 40 m2.

Na poziomie -1 znajduje się komórka lokatorska (koszt 10 000 zł) oraz miejsce parkingowe w hali garażowej- koszt 80 000 zł.

Apartament jest zlokalizowany w nowoczesnym budynku o wysokim standardzie wykończenia.

O komfort i bezpieczeństwo dba monitoring i wideofon.

W budynku jest cichobieżna winda.

Lokalizacja budynku- ul. Wrocławska, zapewnia dobry dojazd w każdą stronę Trójmiasta oraz na obwodnicę. Do przystanków komunikacji miejskiej zaledwie 150 metrów.

Ogłoszenie bezpośrednio od Właściciela.

Details

  • Building Age: 2024

Features

  • Apartamentowiec
  • piętro: 0/3
  • rynek:

Similar Properties

Featured
927 000zł 19723zł / m²

Apartament 46,70 m2 Gdańsk Chmielna

pomorskie, Gdańsk, Stare Miasto Details
  • 824 642 ID
  • m² 47
  • L. Pomieszczeń 2
  • Anna Kontakt
  • 514 033 722 Nr Telefonu
  • sprzedaż Transakcja
  • 3 Piętro
  • 6 Liczba pięter
  • 2 016 Rok budowy
  • Apartamentowiec Rodzaj
3 lata ago
Featured
605 000zł 9758zł / m²

Nowoczesne mieszkanie z ogrodem Bolszewo

pomorskie, Wejherowo, Wejherowo Details
  • 835 237 ID
  • m² 62
  • L. Pomieszczeń 3
  • Magdalena Stawicka Kontakt
  • 534 287 949 Nr Telefonu
  • sprzedaż Transakcja
  • 1 Piętro
  • 1 Liczba pięter
  • Nowe budownictwo Rodzaj
2 miesiące ago
Featured
1 390 000zł 8475zł / m²

DWA apartamenty lokale| Centrum | 100m. od plaży

pomorskie, Krynica Morska, Krynica Morska Details
  • 835 389 ID
  • m² 164
  • L. Pomieszczeń 6
  • Natalia Pierzchała Kontakt
  • 515 416 379 Nr Telefonu
  • sprzedaż Transakcja
  • 5 Liczba pięter
  • 2 011 Rok budowy
  • Apartamentowiec Rodzaj
2 miesiące ago

Featured Properties

Featured
Nieruchomość w miejscowości Spytkowice318 000zł
  • 835 888 ID
  • m² 133
  • L. Pomieszczeń 3
  • 124 122 121 Nr Telefonu
  • sprzedaż Transakcja
  • wolnostojący Rodzaj
Featured
Mieszkanie 60m2 w Chełmsku Śląskim240 000zł
  • 835 889 ID
  • m² 60
  • L. Pomieszczeń 3
  • Anna Pajor Kontakt
  • 535 339 915 Nr Telefonu
  • sprzedaż Transakcja
  • 1 Piętro
  • 4 Liczba pięter
  • 92 Rok budowy
  • Blok Rodzaj
Featured
Wyjątkowa działka w otulinie Kampinosu690 000zł
  • 835 890 ID
  • m² 1 500
  • 601 932 499 Nr Telefonu
  • sprzedaż Transakcja
  • budowlana Rodzaj
Featured
3 balkony/75 m2/2 miejsca w garażu/Komórka 10 m21 800 000zł
  • 835 891 ID
  • m² 75
  • L. Pomieszczeń 3
  • Jakub Lewicki Kontakt
  • 600 940 060 Nr Telefonu
  • sprzedaż Transakcja
  • 1 Piętro
  • 4 Liczba pięter
  • Apartamentowiec Rodzaj
Featured
OKAZJA 2-pokoje z potencjałem Os. Pomorskie330 000zł
  • 835 877 ID
  • m² 52
  • L. Pomieszczeń 2
  • 459 566 916 Nr Telefonu
  • sprzedaż Transakcja
  • 1 Piętro
  • 10 Liczba pięter
  • Blok Rodzaj
Featured
3 pokojowy apartament o podwyższonym standardzie1 150 000zł
  • 835 883 ID
  • m² 59
  • L. Pomieszczeń 3
  • Alkre Development Kontakt
  • 696 771 345 Nr Telefonu
  • sprzedaż Transakcja
  • 4 Piętro
  • 4 Liczba pięter
  • 2 024 Rok budowy
  • Nowe budownictwo Rodzaj
Featured
Mieszkanie 37m2 nad jeziorem Apartamenty Lubikowo283 783zł
  • 835 884 ID
  • m² 37
  • L. Pomieszczeń 3
  • 695 303 419 Nr Telefonu
  • sprzedaż Transakcja
  • 1 Piętro
  • 2 Liczba pięter
  • 2 026 Rok budowy
  • Nowe budownictwo Rodzaj
Featured
SPRZEDAM MIESZKANIE UL. MARATOŃSKA POZNAŃ960 000zł
  • 835 886 ID
  • m² 47
  • L. Pomieszczeń 2
  • Monika Gruszczyńska Kontakt
  • 607 581 977 Nr Telefonu
  • sprzedaż Transakcja
  • 3 Piętro
  • 5 Liczba pięter
  • 2 010 Rok budowy
  • Apartamentowiec Rodzaj
Featured
Mieszkanie 2 pokoje2 800zł
  • 835 873 ID
  • m² 51
  • L. Pomieszczeń 2
  • 665 800 003 Nr Telefonu
  • wynajem Transakcja
  • 9 Piętro
  • 11 Liczba pięter
  • 2 001 Rok budowy
  • Nowe budownictwo Rodzaj
Featured
OGRZEWANIE PODŁOGOWE DOBRE USTAWIENIE197 000zł
  • 835 834 ID
  • m² 44
  • L. Pomieszczeń 2
  • Cegiełka projektowanie i remont Kontakt
  • 790 343 288 Nr Telefonu
  • sprzedaż Transakcja
  • 1 Piętro
  • 4 Liczba pięter
  • Kamienica Rodzaj

Findeo

Morbi convallis bibendum urna ut viverra. Maecenas quis consequat libero, a feugiat eros. Nunc ut lacinia tortor morbi ultricies laoreet ullamcorper phasellus semper.

Helpful Links

  • Plans and Pricing
  • Contact

Contact Us

12345 Little Lonsdale St, Melbourne
Phone: (123) 123-456
E-Mail: office@example.com

© Theme by Purethemes.net. All Rights Reserved.