Compare Properties

You can compare only 4 properties
Compare Reset
Myplus.pl
  • Home
    • Home 1
    • Home 2
    • Home 3
    • Home 4
    • Home 5
    • Home 6
  • Listings
    • List Layout
      • With Sidebar
      • With Map
      • Full Width
    • Grid Layout
      • Standard With Sidebar
      • Compact With Sidebar
      • With Map
      • Full Width
    • Half Screen Map
      • List Layout
      • Grid Standard Layout
      • Grid Compact Layout
  • Features
    • Plans and Pricing
    • Single Properties
      • Property Style 1
      • Property Style 2
      • Property Style 3
    • Search Styles
      • Sidebar Search
      • Advanced Search
      • Home Search 1
      • Home Search 2
      • Home Search 3
    • My Account
      • My Profile
      • Bookmarked Listings
      • My Properties
      • Submit Property
      • Change Password
    • Agents
      • Agents List
      • Agent Profile
    • Agencies
      • Agencies List
      • Agency Page
  • Pages
    • Blog
      • Blog
      • Single Blog Post
    • Contact
    • Elements
    • Typography
    • Icons
Log In / Register Submit Property

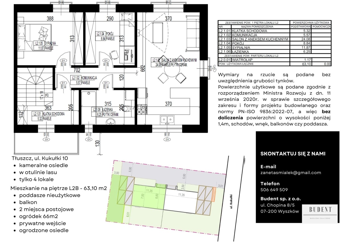
3 pokoje | Parter | Ogródek | Nowe budownictwo

mazowieckie, Tłuszcz,
499 000zł
7920zł / m²
  • 835 071 ID
  • m² 63
  • L. Pomieszczeń 3
  • Żaneta Śmiałek Kontakt
  • 506 649 509 Nr Telefonu
  • sprzedaż Transakcja
  • 1 Piętro
  • 1 Liczba pięter
  • 2 026 Rok budowy
  • Nowe budownictwo Rodzaj

Description

Na sprzedaż mieszkanie L2B 3-pokojowe na piętrze o powierzchni 63,10 m² z dużym ogródkiem 66 m².
Lokal w nowym budownictwie, w trakcie realizacji – planowane zakończenie prac: czerwiec 2026 r.
Idealna propozycja dla rodzin z dziećmi, par oraz osób szukających mieszkania z własną przestrzenią na zewnątrz.
________________________________________
Powierzchnia i układ (63,10 m²):
• Salon z aneksem kuchennym – 24,08 m² (wyjście do ogrodu)
• Pokój – 11,87 m²
• Pokój – 8,84 m²
• Łazienka – 6,25 m²
• Klatka schodowa – 5,32 m²
• Komunikacja – 5,57 m²
• Wiatrołap – 1,17 m²
• Balkon
• Poddasze nieużytkowe
________________________________________
Ogródek:
• 66 m² prywatnej przestrzeni
• możliwość aranżacji tarasu, strefy wypoczynku lub miejsca zabaw dla dzieci
• idealne rozwiązanie dla osób ceniących komfort i kontakt z naturą
________________________________________
Najważniejsze atuty:
• piętro – zapewniona prywatność
• funkcjonalny, przemyślany układ
• salon z wyjściem do ogrodu
• ogrzewanie podłogowe w całym mieszkaniu
• nowe budownictwo
• inwestycja w trakcie budowy
• termin zakończenia: czerwiec 2026
________________________________________
To mieszkanie sprawdzi się zarówno jako lokal do zamieszkania, jak i bezpieczna inwestycja na przyszłość.
Zapraszam do kontaktu – dostępne są również inne mieszkania. Chętnie odpowiem na wszystkie pytania.
www.budent.pl

Details

  • Building Age: 2026

Features

  • Nowe budownictwo
  • piętro: 1/1
  • rynek:

Similar Properties

Featured
720 000zł 13584zł / m²

Mieszkanie 53,35 m2/3 pokoje/KW/Wola

mazowieckie, Warszawa, Wola Details
  • 832 262 ID
  • m² 53
  • L. Pomieszczeń 3
  • Krzysztof Orłowski Kontakt
  • 577 166 001 Nr Telefonu
  • sprzedaż Transakcja
  • 3 Piętro
  • 3 Liczba pięter
  • 1 960 Rok budowy
  • Blok Rodzaj
11 miesięcy ago
Featured
935 000zł 21744zł / m²

2 pokoje w sercu Warszawy *2 ogródki komórka garaż

mazowieckie, Warszawa, Wola Details
  • 831 399 ID
  • m² 43
  • L. Pomieszczeń 2
  • Właściciel Nieruchomości Kontakt
  • 600 099 601 Nr Telefonu
  • sprzedaż Transakcja
  • 5 Liczba pięter
  • 2 014 Rok budowy
  • Apartamentowiec Rodzaj
10 miesięcy ago
Featured
899 000zł 10963zł / m²

ul. ZWM – 4-pokojowe mieszkanie na Ursynowie

mazowieckie, Warszawa, Ursynów Details
  • 834 357 ID
  • m² 82
  • L. Pomieszczeń 4
  • Artur Szuba Kontakt
  • 575 818 281 Nr Telefonu
  • sprzedaż Transakcja
  • 2 Piętro
  • 3 Liczba pięter
  • 1 981 Rok budowy
  • Blok Rodzaj
5 miesięcy ago

Featured Properties

Featured
Nieruchomość w miejscowości Spytkowice318 000zł
  • 835 888 ID
  • m² 133
  • L. Pomieszczeń 3
  • 124 122 121 Nr Telefonu
  • sprzedaż Transakcja
  • wolnostojący Rodzaj
Featured
Mieszkanie 60m2 w Chełmsku Śląskim240 000zł
  • 835 889 ID
  • m² 60
  • L. Pomieszczeń 3
  • Anna Pajor Kontakt
  • 535 339 915 Nr Telefonu
  • sprzedaż Transakcja
  • 1 Piętro
  • 4 Liczba pięter
  • 92 Rok budowy
  • Blok Rodzaj
Featured
Wyjątkowa działka w otulinie Kampinosu690 000zł
  • 835 890 ID
  • m² 1 500
  • 601 932 499 Nr Telefonu
  • sprzedaż Transakcja
  • budowlana Rodzaj
Featured
3 balkony/75 m2/2 miejsca w garażu/Komórka 10 m21 800 000zł
  • 835 891 ID
  • m² 75
  • L. Pomieszczeń 3
  • Jakub Lewicki Kontakt
  • 600 940 060 Nr Telefonu
  • sprzedaż Transakcja
  • 1 Piętro
  • 4 Liczba pięter
  • Apartamentowiec Rodzaj
Featured
OKAZJA 2-pokoje z potencjałem Os. Pomorskie330 000zł
  • 835 877 ID
  • m² 52
  • L. Pomieszczeń 2
  • 459 566 916 Nr Telefonu
  • sprzedaż Transakcja
  • 1 Piętro
  • 10 Liczba pięter
  • Blok Rodzaj
Featured
3 pokojowy apartament o podwyższonym standardzie1 150 000zł
  • 835 883 ID
  • m² 59
  • L. Pomieszczeń 3
  • Alkre Development Kontakt
  • 696 771 345 Nr Telefonu
  • sprzedaż Transakcja
  • 4 Piętro
  • 4 Liczba pięter
  • 2 024 Rok budowy
  • Nowe budownictwo Rodzaj
Featured
Mieszkanie 37m2 nad jeziorem Apartamenty Lubikowo283 783zł
  • 835 884 ID
  • m² 37
  • L. Pomieszczeń 3
  • 695 303 419 Nr Telefonu
  • sprzedaż Transakcja
  • 1 Piętro
  • 2 Liczba pięter
  • 2 026 Rok budowy
  • Nowe budownictwo Rodzaj
Featured
SPRZEDAM MIESZKANIE UL. MARATOŃSKA POZNAŃ960 000zł
  • 835 886 ID
  • m² 47
  • L. Pomieszczeń 2
  • Monika Gruszczyńska Kontakt
  • 607 581 977 Nr Telefonu
  • sprzedaż Transakcja
  • 3 Piętro
  • 5 Liczba pięter
  • 2 010 Rok budowy
  • Apartamentowiec Rodzaj
Featured
Mieszkanie 2 pokoje2 800zł
  • 835 873 ID
  • m² 51
  • L. Pomieszczeń 2
  • 665 800 003 Nr Telefonu
  • wynajem Transakcja
  • 9 Piętro
  • 11 Liczba pięter
  • 2 001 Rok budowy
  • Nowe budownictwo Rodzaj
Featured
OGRZEWANIE PODŁOGOWE DOBRE USTAWIENIE197 000zł
  • 835 834 ID
  • m² 44
  • L. Pomieszczeń 2
  • Cegiełka projektowanie i remont Kontakt
  • 790 343 288 Nr Telefonu
  • sprzedaż Transakcja
  • 1 Piętro
  • 4 Liczba pięter
  • Kamienica Rodzaj

Findeo

Morbi convallis bibendum urna ut viverra. Maecenas quis consequat libero, a feugiat eros. Nunc ut lacinia tortor morbi ultricies laoreet ullamcorper phasellus semper.

Helpful Links

  • Plans and Pricing
  • Contact

Contact Us

12345 Little Lonsdale St, Melbourne
Phone: (123) 123-456
E-Mail: office@example.com

© Theme by Purethemes.net. All Rights Reserved.